PROJEKTE
MELDUNGEN
ENTWÜRFE
BÜRO
KONTAKT
Geschosswohnungsbau UB
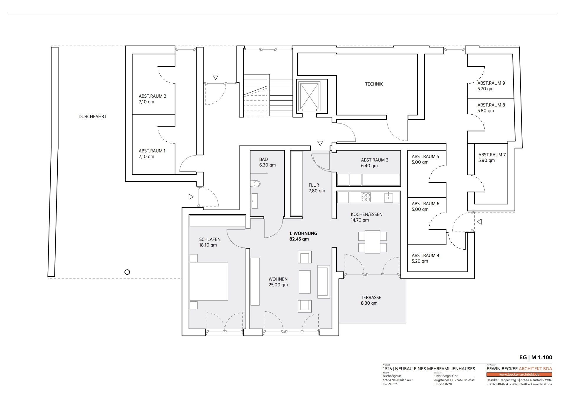
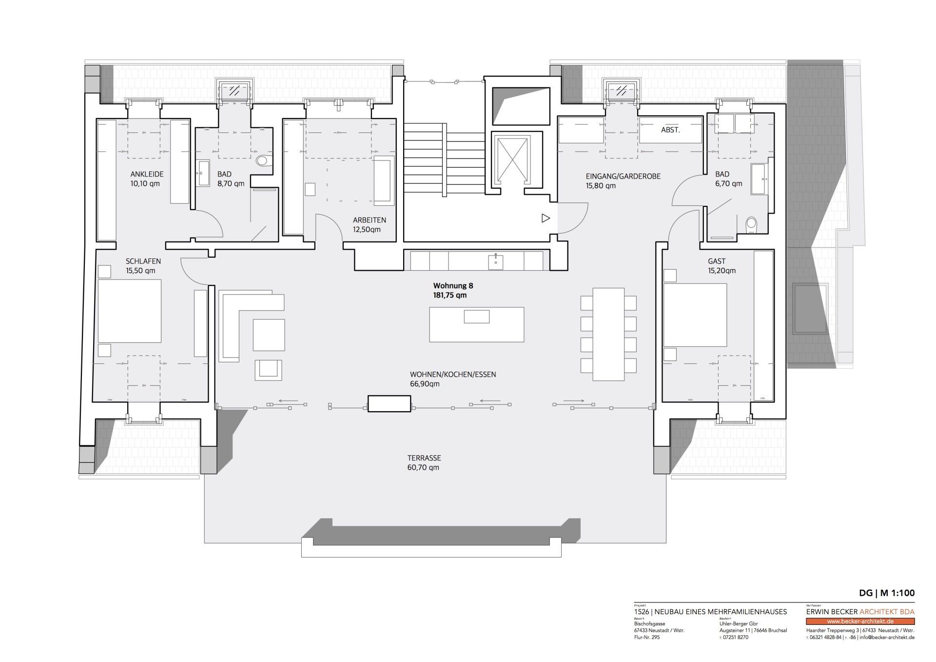
BAULÜCKENSCHLIESSUNG - GESCHOSSWOHNUNGSBAU
Neustadt an der Weinstrasse Bischofsgasse 7a
Innerstädtischer Wohnungsbau mit 8 Wohneinheiten in einer schmalen Innenstadtgasse auf einem ehemaligen Gewerbegrundstück als Baulückenschliessung errichtet.
Button
Button
Button
Button
Button
Button
Button
Button
Button
Button
Button
Button
Button
Button
Button
Datenschutz
Impresssum
Share by: