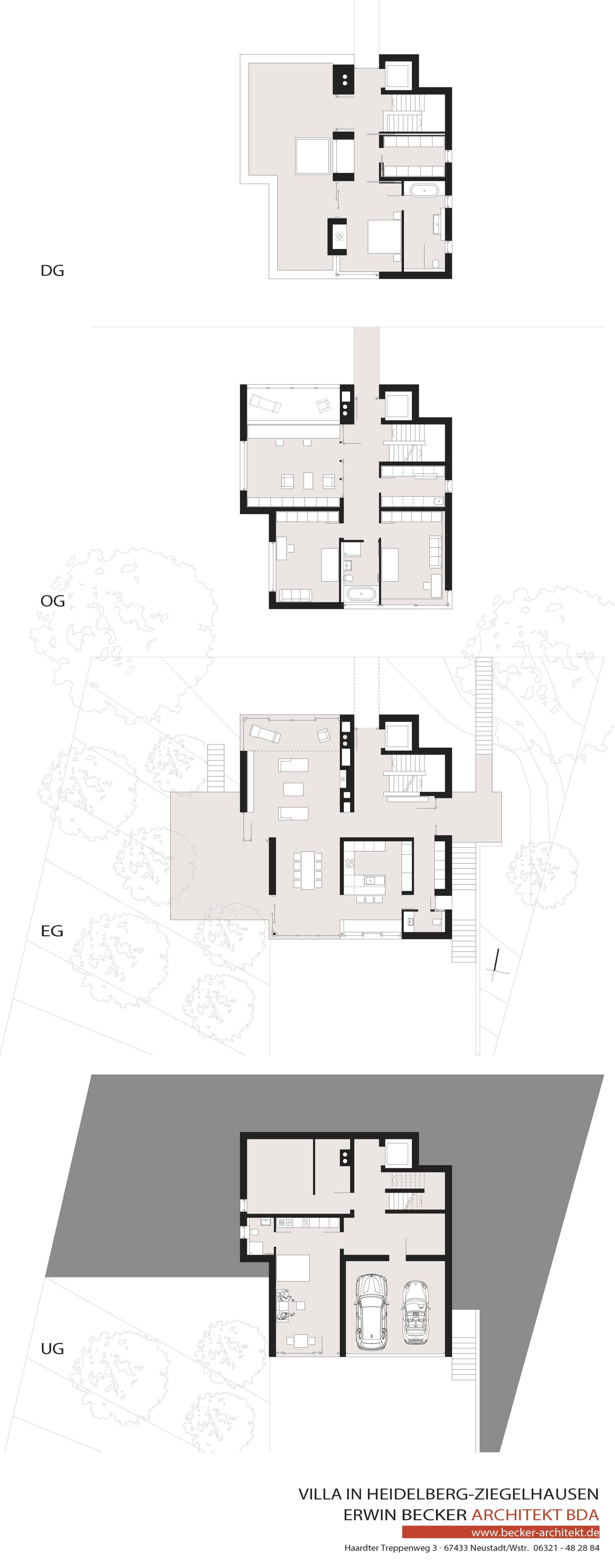
Villa über dem Neckar
Auf einem terrassiertem Hanggrundstück über dem Neckar, vor einer denkmalgeschützten Trockenmauer, eines ehemaligen Weinberggeländes entstand ein skulpturaler Baukörper
über vier Geschosse mit eingeschnittenem Dachgeschoss und Dachterrasse.
Über eine Brücke im Obergeschoss ist die höhere Ebene des Außengeländes direkt vom Gebäude aus zugänglich.
Die Trockenmauer wurde bewusst als Erweiterung des Innenraums mit eingezogen und illuminiert.







